
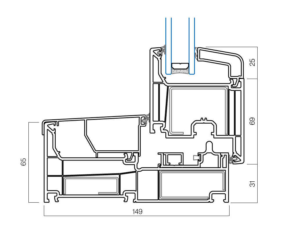
Información Técnica| Sección de marco/hoja | 149 / 76 mm |
|---|---|
| Sección vista nudo lateral | 125 mm |
| Acristalamiento máximo | 52 mm |
| Sistema de aislamiento | 6 cámaras |
| Estanqueidad | Triple junta |
| Opciones de Seguridad | RC1 en ventana |
| Dimensiones máximas | 2.200 x 2.100 mm |
| Tipos de apertura | Paralela |
| Acabados |
Foliados: Madera natural, madera color, sólidos y metálicos. 40 colores disponibles. |
| Permeabilidad al aire (UNE EN 12207) |
Clase 4 |
|---|---|
| Resistencia al viento (UNE EN 12210) |
C4 |
| Resistencia al agua (UNE EN 12208) |
8A |
| Prestaciones térmicas (EN ISO 10077-2) |
Uw ≥ 0,96 W/m2K (Uf = 1,4 W/m2K) |
| Atenuación acústica (UNE EN ISO 10140-2:2010) |
Rw ≤ 32 (-1, -5) dB |
| ** Consultar las dimensiones y configuración de las ventanas ensayadas. |
| Vidrio | Vidrio doble con seguridad |
|---|---|
| Herraje | Herraje especial paralela |
| Manilla | Estándar paralela |
| Cajón de persiana | Eurostand PVC 200 Grafipol |

Características destacadas
Descarga las instrucciones de montaje, hoja de pedido.